KIT PALA DE VIDRO Inox 316

KIT PALA DE VIDRO Inox 316

Descrição

KIT PALA DE VIDRO

INOX 316

Ø58 Varão Ø10mm - Rosca M10

Comprimento Varão de 1000mm

 

  • kit pala vidro.jpg

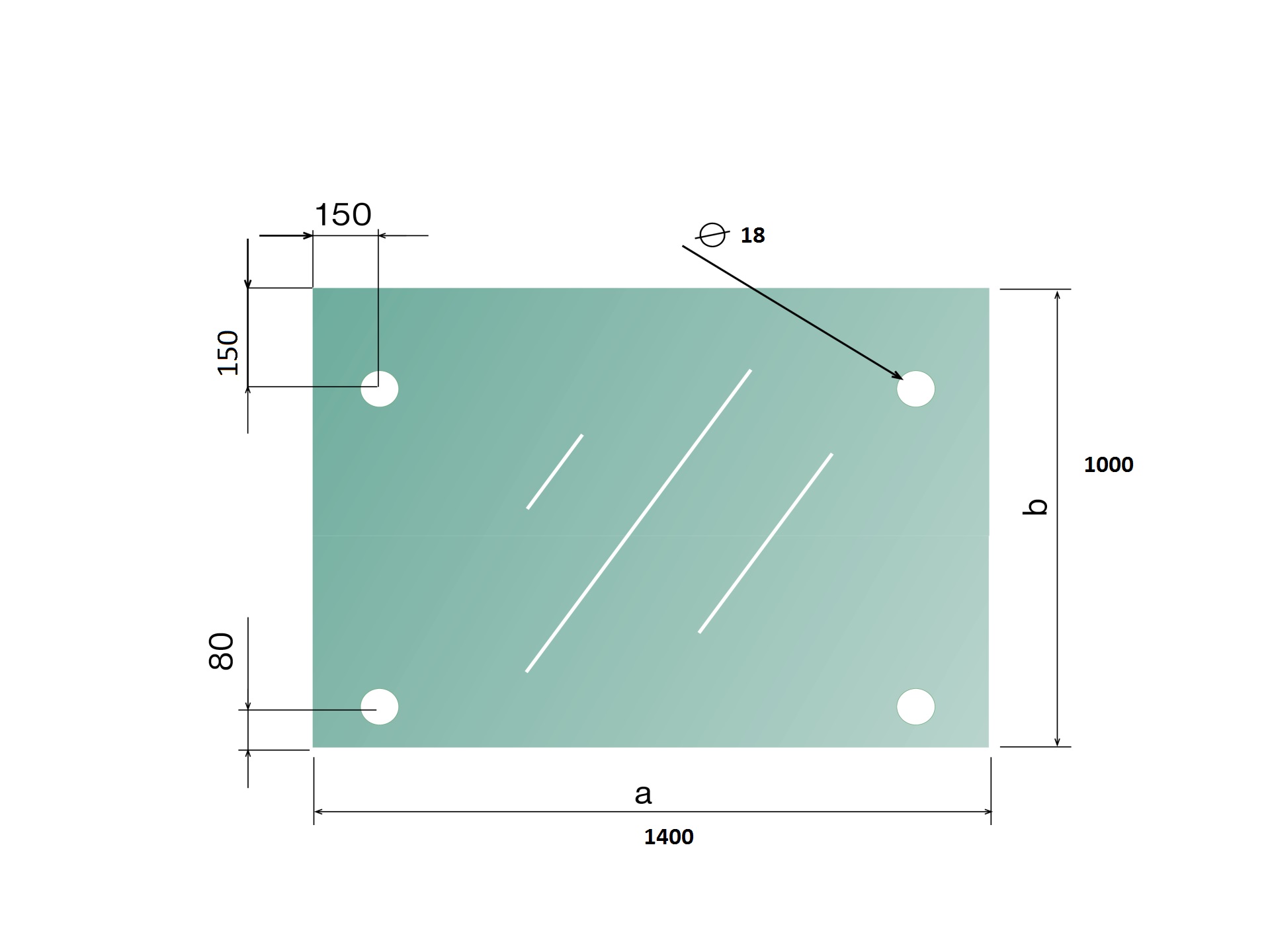
  • Esquema furação Pala de Vidro 1000x1400.jpg